Chiama: +390236720860
Milano – Bilocale via Achille Zezon 8 zona Centrale
- €350.000
Panoramica
ID Immobile: SG20416
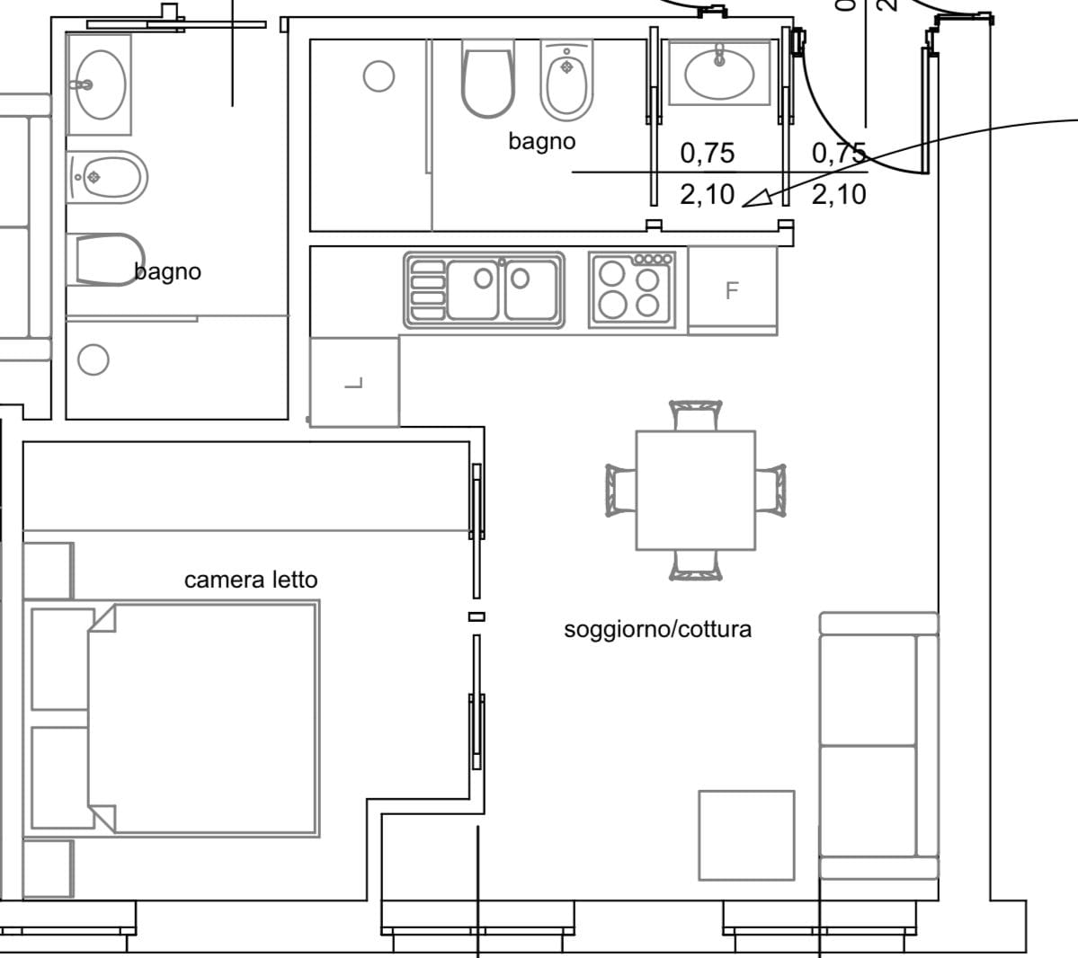
- Appartamento, Residenziale
- 50 m2
- 2
- 1
Descrizione
MILANO – BILOCALE IN FASE DI RISTRUTURAZIONE REPUBBLICA
In vendita bilocale in via Zezon 8, attualmente in fase di completa ristrutturazione con consegna prevista entro fine ottobre. Situato all’interno di un meraviglioso cortile interno, immerso nel verde e lontano dai rumori della strada, offre una rara combinazione di tranquillità e centralità. L’appartamento gode di una bella vista e verrà consegnato chiavi in mano, con possibilità per l’acquirente di personalizzare le finiture secondo il proprio gusto. La posizione è strategica, a pochi passi sia da Repubblica che da Centrale, in una zona servitissima e in forte crescita.
Indirizzo
Apri su Google Maps- Indirizzo: via Achille Zezon 8
- Città: Milano
- Provincia: Lombardia
- CAP: 20124
- Area: Repubblica, Stazione Centrale
- Paese: Italia
Dettagli
Aggiornato il Giugno 30, 2025 at 11:36 am- ID Immobile SG20416
- Prezzo €350.000
- Dimensioni 50 m²
- Locali 2
- Camera 1
- Bagno 1
- Tipologia Appartamento, Residenziale
- Stato Immobile IN VENDITA
- Piano 1
- Spese condominali € 150/mese
- Condizioni Ristrutturato
Caratteristiche
Calcola Mutuo
Mensile
- Acconto
- Ammontare del prestito
- Rata


